Fam. Saris

Natuurlijke Rust

Laat u verrassen door deze stijlvolle badkamer, ontworpen met warme, aardse tinten. De combinatie van een vrijstaand bad en natuurlijke elementen zoals houten accenten en neutrale tegels maakt deze ruimte een perfecte plek voor totale ontspanning en rust.

Familie Saris

Moderne Badkamer

22 September 2023

 Amsterdam, Nederland

Project Hoogtepunten

De dubbele wastafel met houten onderkast voegt een eigentijdse elegantie toe. De ronde spiegel met verlichting combineert functionaliteit met stijl. Dit ontwerp biedt een perfecte balans tussen modern comfort en tijdloze charme, ideaal voor een serene badkamerervaring.

De warme tegelafwerking in visgraatpatroon achter het bad creëert een unieke sfeer. Het contrast met de lichte sanitair-elementen voegt diepte toe aan de ruimte. Deze badkamer combineert verfijning met een natuurlijke uitstraling, een plek waar functionaliteit en design harmonieus samengaan.

Met zijn stijlvolle materialen en doordachte details is deze badkamer een toonbeeld van rust. Elk element, van de verlichting tot de geïntegreerde opbergnissen, is ontworpen om uw comfort te verbeteren en een luxe sfeer te creëren.

Deze ruimte biedt meer dan een badkamer: het is een persoonlijke spa. Laat u inspireren door dit ontwerp dat natuurlijke kleuren en moderne functionaliteit combineert. Perfect voor wie op zoek is naar een ruimte van rust en vernieuwing.

01.

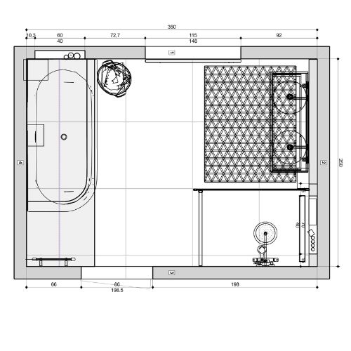
Ruimte Planning

Ogni bagno di successo inizia con un'attenta pianificazione dello spazio. Esaminiamo le dimensioni, consideriamo i desideri sanitari e la libertà di movimento per un layout perfetto.

02.

Aspetto dell'inventario

Ci prendiamo il tempo necessario per esplorare le tue preferenze di stile e le tue esigenze funzionali. Ciò include una discussione approfondita di materiali, colori, finiture e infissi per il look perfetto.

03.

Progettazione Realizzativa

I nostri designer disegnano schizzi e creano modelli 3D, dove la tua visione e la nostra creatività si uniscono per dare vita a concetti di bagno unici e personalizzati.

Realiseer Uw Badkamerdroom - Vraag Een Ontwerp Aan

Laten we uw ideale badkamer realiteit maken met een op maat gemaakt ontwerp. Vertel ons uw wensen en wij creëren een ruimte waar u van zult houden. Klik op de knop hieronder en begin vandaag nog met het vormgeven van uw badkamer.